25 EL CAMINO REALCarlsbad, CA 92009




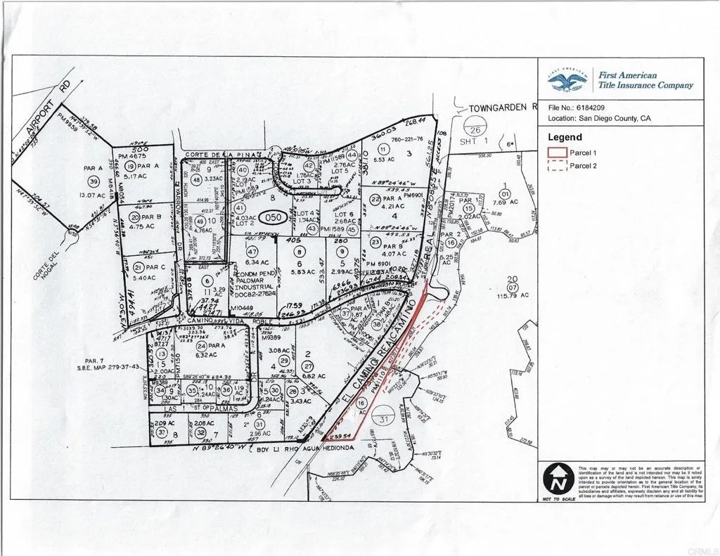
THIS PROPERTY IS TRANGULAR SHAPED WITH AN ESTIMATED ACERAGE OF 2.19 TO 2.48. AFTER REDUCTION OF THE EL CAMINO REAL ROAD WIDENING EASEMENT (BUYER TO VERIFY) ACCESS IS A 30 FOOT APRON OFF THE EASEMENT ROADWAY JASPER WAY. CURRENTLY THERE IS A SEWER HOOK UP MORATORIUM IN THE CITY OF CARLSBAD AFFECTING THIS PROPERTY THE CITY OF CARLSBAD PURCHASED AN EASEMENT ALONG EL CAMINO REAL ON THE WEST SIDE OF THIS PROPERTY FOR THE WIDENING AND IMPROVEMENT OF EL CAMINO REAL. THE CITY OF CARLSBAD HAS NOT SET A DATE NYET FOR THE CONSTRUCTION. THIS PROPERTY HAS A LONG ANBD NARROWING SHAPE. THE SOUTHERN END OF THE PROPERTY ,WHICH HAS A DEPRESSION IS THE MOST LIKELY LOCATION OF ANY IMPROVEMENTS. A SEWER EASEMENT OF 30 FEET CROSSES THE LOWER THIRD OF THE PROPERTY AND IS A HIGH PRESSURE LINE. THERE IS A 30 FOOT APRON ACCESS OFF JASPER WAY. BUYER TO SATISFY SELF AS TO ANY AND ALL CONDITIONS AND AVAILABILITY FOR DEVELOPMENT PRIOR TO THE CLOSE OF ESCROW. THERE IS A SDGE HIGH PRESSURE GAS LIKNE RUNNING ALONG THE NEW EASEMENT AS DESIGNATED BY YELLOW STAKES ABOUT 5 FEET TALL BUYER TO DETERMINE IF THERE IS ANY VEGETATION MITIGATION ON THE PROPERTY AND SATISY SELF.
| a month ago | Listing updated with changes from the MLS® | |
| 2 months ago | Status changed to Active Under Contract | |
| a year ago | Listing first seen on site |
This information is deemed reliable but not guaranteed. You should rely on this information only to decide whether or not to further investigate a particular property. BEFORE MAKING ANY OTHER DECISION, YOU SHOULD PERSONALLY INVESTIGATE THE FACTS (e.g. square footage and lot size) with the assistance of an appropriate professional. You may use this information only to identify properties you may be interested in investigating further. All uses except for personal, non-commercial use in accordance with the foregoing purpose are prohibited. Redistribution or copying of this information, any photographs or video tours is strictly prohibited. This information is derived from the Internet Data Exchange (IDX) service provided by San Diego MLS®. Displayed property listings may be held by a brokerage firm other than the broker and/or agent responsible for this display. The information and any photographs and video tours and the compilation from which they are derived is protected by copyright. Copyright © 2026 San Diego MLS®.
Last checked 2026
Property listings throughout our website are updated every 10 minutes. Click on any listing for further details and property photos. Please contact us if we can assist you, we are here to help!
Explore everything the San Diego Real Estate market has to offer by browsing the various guides we have created to assist you in finding the right home in the neighborhood that is better suited to your lifestyle demands. Our community and neighborhood guides offer photos, videos, market reports and additional articles and resources to assist buyers and sellers of San Diego real estate.
Did you know? You can invite friends and family to your search. They can join your search, rate and discuss listings with you.